東京都内の貸倉庫・貸工場・賃貸土地の情報満載(トップ) > 東京のエリアで探す > 東京都葛飾区 > 四ツ木 > 葛飾区東四つ木4-30-11 四ツ木 工場
東京都葛飾区東四つ木4-30-11 (四ツ木) 四ツ木 工場 詳細データ
この物件の物件番号は6805です。お電話(03-6260-658603-6260-6586)でお問合せの際は物件番号をお知らせ下さい。「東京倉庫ドットコムを見て」とお伝えいただくと話がスムーズに進みます。※不動産業者様へのご紹介は不可です。
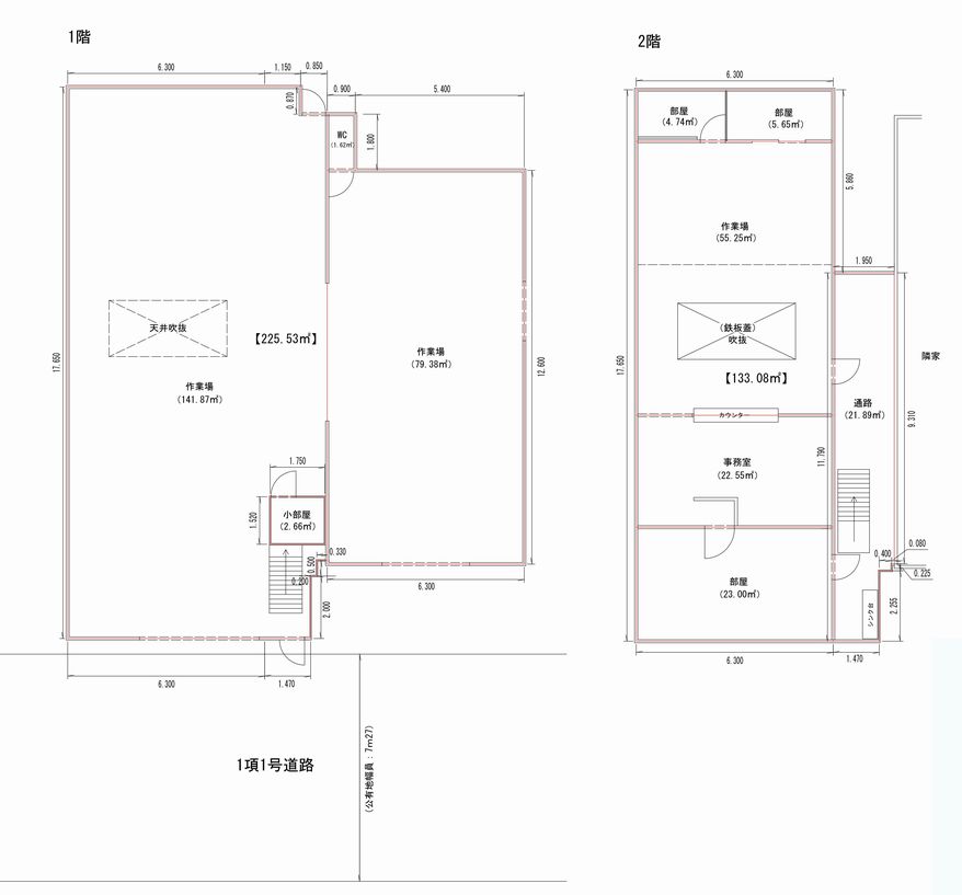
| 物件名 | 四ツ木 工場 |
|---|---|
| 沿線/駅 | 京成押上線 / 四ツ木 |
| バス/徒歩 | バス:- / 徒歩:9 分 |
| 所在地 | 東京都葛飾区東四つ木4-30-11 |
| 賃料(坪・円) | 坪 8,333 円 (総額 900,000 円) |
| 共益費 | |
| 使用面積 | 108 坪 |
| 敷地面積 | 坪 |
| 礼金 | 2 ヶ月 |
| 敷金 | 5 ヶ月 |
| 保証金 | |
| 構造 | 軽量鉄骨造 |
| 竣工年 | 1965 年 |
| 所在階 | 1-2/2 階 |
| 接道状況 | 7.2m |
| 用途地域 | 工業地域 |
| 駐車場 | 無 |
| 契約期間 | 3 年 |
| 現況 | 現空 |
| 備考 | トイレ 隣地と一体となる。建物昭和52年11月築、鉄骨造2階建 |
| 貸倉庫・貸工場・賃貸土地の事業用ポータルサイトNo.1 |
|---|
|
東京都葛飾区東四つ木4-30-11の貸倉庫・貸工場・賃貸土地を探すなら中小企業を応援する東京貸倉庫.comでニーズに合った物件を検索してください。東京都葛飾区東四つ木4-30-11の事務所付貸倉庫、クレーン付、店舗倉庫、工業専用地域等、何なりと営業担当者にお申し付けください。その他、東京都葛飾区東四つ木4-30-11の貸し倉庫・貸し工場・賃貸土地を貸したい方には無料にて査定・掲載いたしますので当社のオーナーサポートシステムをご利用ください。東京都葛飾区東四つ木4-30-11で貸倉庫・貸工場・賃貸土地を契約のテナント様には貸し倉庫・貸し工場の設計変更、造作のご相談も承ります。貸倉庫・貸工場・賃貸土地の移転・新規開設は東京エリア最大級、新着情報満載、東京貸倉庫.com! |










